ZL100691-15650-Jan-Coolenhof-31,-Gameren-263983496

Gameren

Jan Coolenhof 31

  • 151m²
  • 300m²
  • 6
€ 635.000 k.k.

Omschrijving

Jan Coolenhof 31 is zo’n huis waar je je direct thuis voelt. De ruimte en de rustige ligging zorgen vanaf het eerste moment voor een prettig gevoel. Een woning waarin iedere verdieping logisch is ingedeeld en waar binnen en buiten mooi in elkaar overlopen.

Dit is een moderne twee onder een kapwoning uit 2008, gelegen aan een rustige straat in een verzorgde woonwijk in Gameren. Met een woonoppervlakte van circa 151 m², vier slaapkamers, twee eigen parkeerplaatsen waarvan één onder de carport, een garage en een fraai aangelegde tuin biedt deze woning verrassend veel comfort en gebruiksmogelijkheden. Dankzij het energielabel A+ woon je hier bovendien energiezuinig en toekomstgericht.

Begane grond
Via de verzorgde voortuin kom je binnen in de entree. Hier bevinden zich het toilet, de meterkast en de toegang tot de leefruimtes. De begane grond voelt ruim en open aan, met een prettige verbinding tussen keuken, woonkamer en tuin.

De keuken is aan de voorzijde van de woning gesitueerd en biedt volop ruimte voor een eettafel. De opstelling is functioneel en verzorgd, met diverse inbouwapparatuur die in de afgelopen jaren deels is vernieuwd. Dankzij de erker komt hier veel daglicht binnen, wat het een fijne plek maakt voor dagelijkse maaltijden en lange avonden aan tafel.

De woonkamer ligt aan de achterzijde van de woning en is ruim van opzet, met voldoende plek voor een comfortabele zithoek. Openslaande deuren zorgen voor een directe verbinding met de tuin en halen buiten naar binnen. De vloerverwarming op de begane grond draagt bij aan het wooncomfort.

Aansluitend aan de woonkamer bevindt zich een overkapping, waardoor je ook bij minder weer beschut buiten kunt zitten. De overkapping is voorzien van neerwaartse screens en een heater, wat deze plek extra comfortabel maakt en het buitenseizoen aanzienlijk verlengt.

Eerste verdieping
Op de eerste verdieping kom je uit op een ruime overloop die toegang geeft tot twee slaapkamers en de badkamer. Beide slaapkamers zijn royaal van formaat en beschikken over veel lichtinval. De indeling is praktisch en biedt volop mogelijkheden voor slapen, werken en/of hobby’s.

De badkamer is compleet uitgevoerd met een ligbad, inloopdouche, wastafel en toilet. Een prettige en complete ruimte die comfortabel is in het dagelijks gebruik.

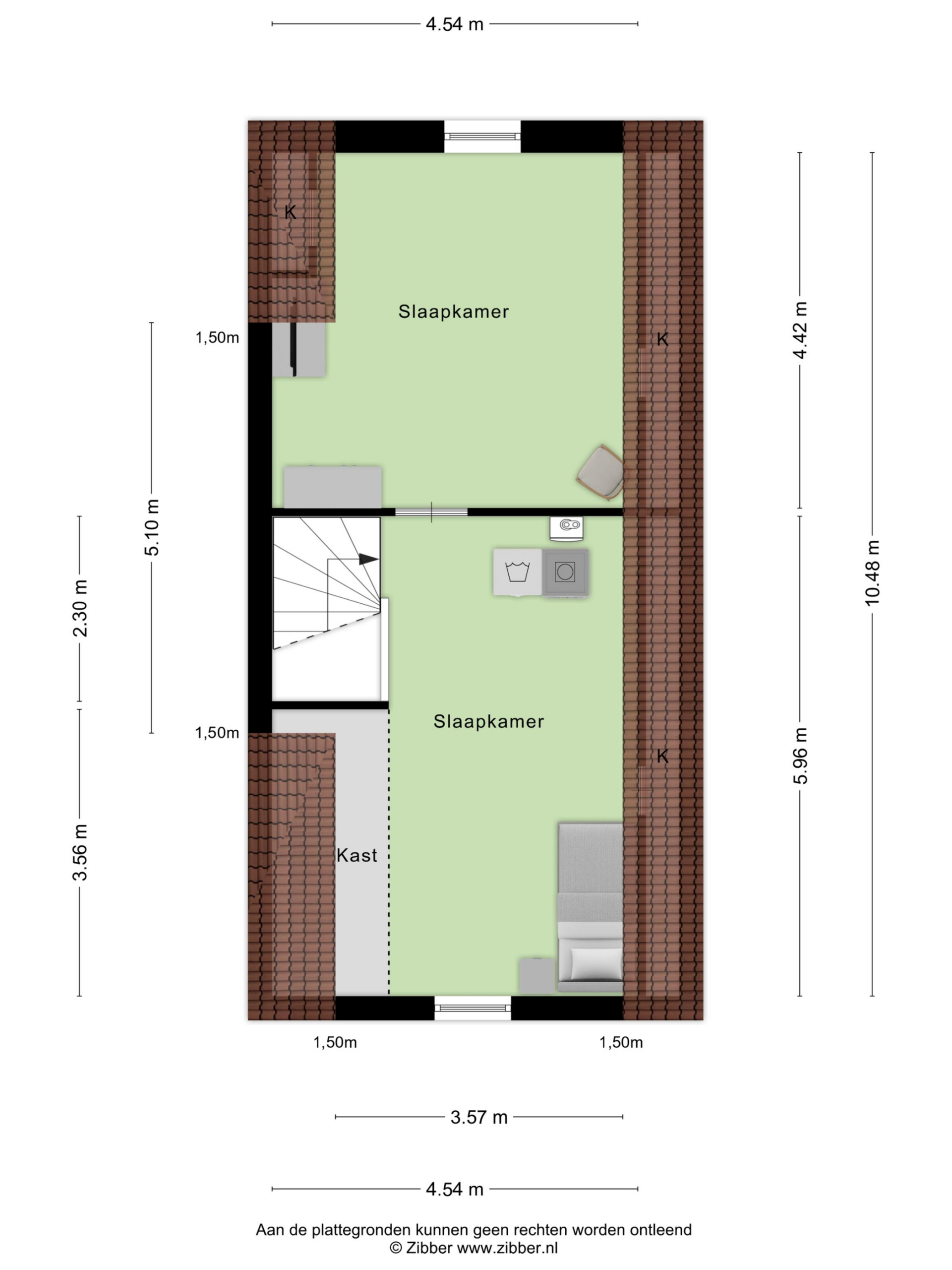
Tweede verdieping
De tweede verdieping verrast door de ruimte en de indeling. Hier bevinden zich nog twee kamers, beide van een prettig formaat en voorzien van vaste kastruimte onder de schuine dakvlakken. Deze verdieping is ideaal om te gebruiken als extra slaapkamers, werkkamers of een combinatie van wonen en werken.

Daarnaast zijn op deze verdieping de cv installatie en de aansluitingen voor wasapparatuur aanwezig. Alles is overzichtelijk opgesteld, waardoor de verdieping praktisch blijft en optimaal benut kan worden.

Buitenruimte
De achtertuin is verzorgd aangelegd en ligt op het zuiden, waardoor je hier vrijwel de hele dag van de zon kunt genieten. Doordat de tuin ook aan de zijkant van de woning doorloopt zijn er meerdere zitplekken gecreëerd, zodat je op elk moment van de dag een fijne plek kunt kiezen. De combinatie van bestrating, groen en de overkapping zorgt voor een prettige balans tussen sfeervol en onderhoudsvriendelijk.

Achter in de tuin staat een volledig geïsoleerde schuur met vliering, gecombineerd met een carport. Deze ruimte is voorzien van water en een toilet en biedt volop mogelijkheden, bijvoorbeeld als kantoor aan huis, hobbyruimte of extra opslag. Parkeren is hier goed geregeld, met twee parkeerplekken op eigen terrein.

Ligging
Jan Coolenhof 31 ligt in het dorp Gameren, midden in de Bommelerwaard. Een geliefde woonomgeving waar rust, ruimte en groen samenkomen. Gameren beschikt over basisvoorzieningen en een actieve dorpskern, terwijl je voor een breder aanbod aan winkels, horeca, scholen en zorgvoorzieningen terechtkunt in het nabijgelegen Zaltbommel.

Zaltbommel ligt op korte afstand en biedt een sfeervol historisch centrum, een NS station en uitstekende voorzieningen voor dagelijks gebruik. De ligging ten opzichte van uitvalswegen is gunstig. Via de A2 en A15 zijn steden als Den Bosch, Utrecht en Nijmegen goed bereikbaar, waardoor deze locatie zich uitstekend leent voor wie rustig wil wonen maar toch centraal in Nederland wil zijn.

Tot slot
Jan Coolenhof 31 is een woning waar comfort, ruimte en duurzaamheid samenkomen. Een huis dat meebeweegt met verschillende woonwensen en klaar is voor de volgende stap. Wie op zoek is naar een fijne, complete woning in een rustige woonomgeving met goede bereikbaarheid, voelt zich hier al snel thuis.

Kenmerken

  • Status Verkocht onder voorbehoud
  • Bouwjaar 2008
  • Aanvaarding In overleg
  • Soort woning Eengezinswoning
  • Type woning Twee onder een kapwoning
  • Aantal kamers 6
  • Aantal slaapkamers 4
  • Aantal badkamers 1
  • Badkamer voorzieningen Ligbad, toilet, wastafel, inloopdouche
  • Isolatie Volledig geisoleerd, hr glas
  • Soort Verwarming Cv ketel, vloerverwarming gedeeltelijk
  • Ketel bouwjaar 2008
  • Ketel gas/olie Gas
  • Ketel eigendom Eigendom
  • Energielabel A+

“Een juiste waardebepaling, een zorgeloze verkoop en persoonlijk hypotheekadvies, dat is waar wij voor staan”

Frame 5862
Peter Oomen Register Makelaar Taxateur Wonen en BOG Erkend Hypotheekadviseur

Het huis in beeld

Peter Oomen

Register Makelaar Taxateur Wonen en BOG Erkend Hypotheekadviseur

Oomen-108
Hypotheek & Financieel advies

Als onafhankelijk hypotheekadviseur helpen we je de best passende hypotheek te vinden.

Meer informatie
Een gevalideerde taxatie van je huis

Taxaties zijn onlosmakelijk verbonden met een financiering.

Meer informatie
Oomen-031

“Laten we samen dat hoofdstuk schrijven.”

DSC02757
Esther Oomen Makelaar - Taxateur

Vind je een persoonlijke afspraak prettiger?

Laat ons je begeleiden naar de juiste hypotheek. Plan je afspraak vandaag nog.

Deel dit item