ZL100319-2268-Broekheuvelstraat-1a-2,-Bruchem-139196460

Bruchem

Broekheuvelstraat 1A 2

  • 6380m²
€ 400.000 k.k.

Omschrijving

Wil jij landelijk wonen en droom je ervan jouw eigen vrijstaande woning met garage te laten bouwen? Dan is dit je kans!

Op een mooie locatie aan de rand van het dorp Bruchem ligt deze ruime bouwkavel met omgevingsvergunning voor het realiseren van een fraaie schuurwoning met garage. In deze duurzame villa, passend in het landschap, geniet je straks volop van alle wooncomfort en van een magnifiek uitzicht.

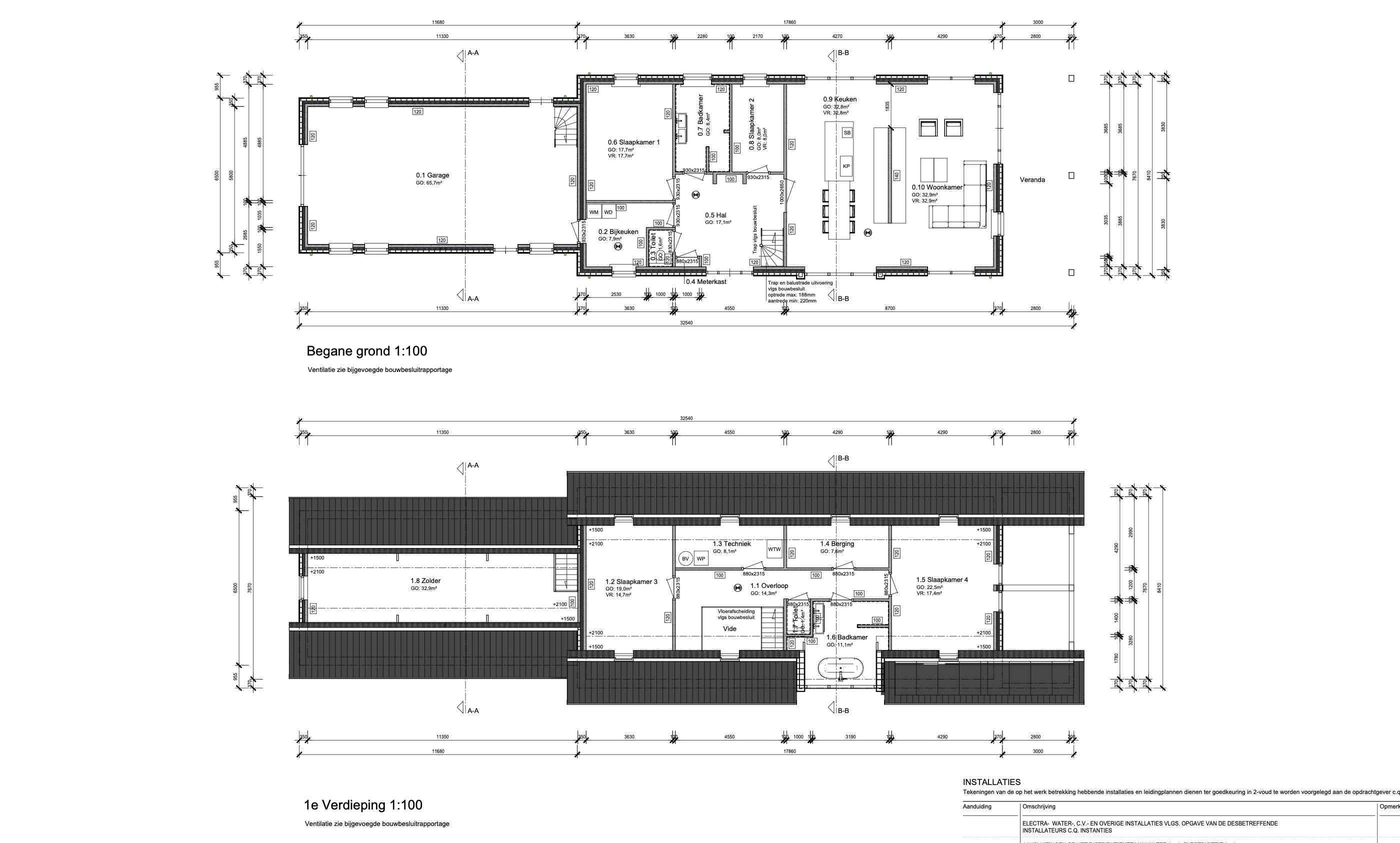
De kavel is startklaar voor de bouw. De bouwtekeningen (incl. alle documentatie) zijn gereed en de omgevingsvergunning is afgegeven op basis van dit ontwerp. Let op! Het betreft een bouwkavel, voor de bouw van de woning ben je als koper zelf de opdrachtgever. Met een woonoppervlakte van 217 m2 en een inhoud van 795 m3 is er in deze schuurwoning aan ruimte geen gebrek! Het ontwerp is modern en duurzaam, zonder gasaansluiting en volledig elektrisch (warmtepomp en zonnepanelen). Dankzij optimale isolatie is de woning straks zeer zuinig in het energieverbruik en voldoet aan de meest actuele vereisten qua duurzaamheid.

Woning
Via de entree aan de zijkant van de woning betreed je de hal. Een centrale ruimte in de woning. Vanuit hier heb je toegang tot alle vertrekken op de begane grond, zoals toiletruimte, woonkeuken en living, twee slaapkamers, badkamer en bijkeuken, en je vindt hier de trapopgang naar de eerste verdieping. Rechts van de entree loop je de woonkeuken binnen, met een afmeting van ca. 33 m2 groot. Deze heeft een open verbinding met de living. Deze is gelegen aan de achterzijde en is ook ca. 33 m2 groot. Zo ontstaat een fijne ruimte van ca. 66 m2 groot. Via de openslaande tuindeuren heb je vrij zicht op de tuin, waardoor je buiten bij de woonkamer betrekt en er hier een nog ruimtelijker gevoel ontstaat ervaart. Via de tuindeuren stap je zo naar buiten onder de overkapping waar je een heerlijk terras kunt realiseren. De twee slaapkamers zijn ca. 8 m2 en ca. 18 m2 groot. Fijne ruimtes en bijzonder geschikt als slaap-, werk- en/of speelkamer. De badkamer is toegankelijk vanuit de centrale hal en bevindt zich tussen de twee slaapkamers in. Direct links naast de entree is de bijkeuken waar onder andere bergruimte is en een aansluiting voor je witgoedapparatuur.
en het opbergen van je spullen.

Vanuit de hal neem je de trapopgang naar de verdieping en kom je op de overloop met vide. Vanaf hier heb je toegang tot de andere twee slaapkamers, tweede badkamer, toiletruimte, berging en technische ruimte. De slaapkamers zijn ca. 15 m2 en ca. 17,5 m2 groot en ook dit zijn bijzonder fijne ruimtes om als slaap- en/ of studeerkamer in te richten. De badkamer op de verdieping heeft een dakkapel en is ca. 11 m2 groot.

Tuin
De diepe achtertuin van ligt op het zuid-oosten en is geheel naar eigen inzicht aan te leggen. Zo is er bijvoorbeeld ruimte voor diverse terrassen, een grasveld en verschillende plantenborders of andere begroeiingen zoals een fruitbomen. Ieder moment van de dag vind je hier wel een lekker plekje in of uit de zon.

Garage en parkeren
Er is voldoende parkeergelegenheid op eigen terrein. Aan de schuurwoning is de garage gesitueerd. De begane grond heeft een oppervlakte van ca. 66 m2. Via de vaste trapopgang kom je op de zolder van maar liefst ca. 33 m2.

Uitbreiding perceel
Geniet je graag van nog meer ruimte om de deur, voor bijvoorbeeld het houden van dieren of voor meer vrijheid rondom de woning? Het achtergelegen (deel)perceel met agrarische bestemming van ca. 5.260 m2, is bij de woning te koop voor een koopsom van € 69.000,- k.k. Totaal bedraagt het perceeloppervlak dan maar liefst 6.380 m2.

Bijzonderheden:
-Bouwkavel van 1.120 m2
-Omgevingsvergunning voor vrijstaande schuurwoning met garage
-Voldoet aan de meest actuele vereisten qua duurzaamheid
-Achterliggende grond van 5.260 m2 erbij te koop
-10,4% overdrachtsbelasting van toepassing

Bruchem
Het landelijke dorp Bruchem, behorende bij de gemeente Zaltbommel, heeft voorzieningen als een basisschool, kinderdagverblijf en peuterspeelzaal. Sportvelden, basisscholen, voortgezet onderwijs, diverse supermarkten, winkels, restaurants en terrassen evenals het NS station zijn in de nabije omgeving te vinden. Ook de oprit tot de A2 ligt op een steenworp afstand. De strategische ligging ten opzichte van de autosnelwegen zorgt ervoor dat zowel Utrecht als Eindhoven in ca. een half uur te bereiken zijn. De bourgondische stad Den Bosch is ca. 15 autominuten bereikbaar. Op ca. 3 km ligt het historische vestingstadje Zaltbommel met al haar voorzieningen en de rivier De Waal. Het is heerlijk wandelen het fietsen over de dijken en de uiterwaarden.

Ben je nieuwsgierig geworden of het laten bouwen van deze landelijke schuurwoning met garage jouw past? Download de uitgebreide brochure voor meer informatie en neem contact met ons op!

Kenmerken

  • Status Beschikbaar
  • Aanvaarding In overleg

“Een juiste waardebepaling, een zorgeloze verkoop en persoonlijk hypotheekadvies, dat is waar wij voor staan”

Frame 5862
Peter Oomen Register Makelaar Taxateur Wonen en BOG Erkend Hypotheekadviseur

Het huis in beeld

Peter Oomen

Register Makelaar Taxateur Wonen en BOG Erkend Hypotheekadviseur

Oomen-108
Hypotheek & Financieel advies

Als onafhankelijk hypotheekadviseur helpen we je de best passende hypotheek te vinden.

Meer informatie
Een gevalideerde taxatie van je huis

Taxaties zijn onlosmakelijk verbonden met een financiering.

Meer informatie
Oomen-031

“Laten we samen dat hoofdstuk schrijven.”

DSC02757
Esther Oomen Makelaar - Taxateur

Vind je een persoonlijke afspraak prettiger?

Laat ons je begeleiden naar de juiste hypotheek. Plan je afspraak vandaag nog.

Deel dit item